KYN61-40.5中電圧開閉装置の性能、安全な操作方法、および技術的パラメータを提示します
モデルと意味
K Y N 61 - 40.5/□-
└ ─ 定格破壊短絡電流 (KA)
└ ─ ─ ─ 定格電流 (A)
└ ─ ─ ─ ─ ─ ─ ─ 定格電圧 (KV)
└ � � � � � � � � � � � � � � � � � � � � � � � � � � � � � � � � � � � � � � � � � � � � � � � � � � � � � � � � � � � � � � � � � � � � � � � � � � � � � � � � � � � � � � � � � � � � � � � � � � � � � � � � � � � � � � � � � � � � � � � � � � � � � �
屋内では、 └ ─ ─ ─ ─ ─ ─ ─ ─
└ ─ ─ ─ ─ ─ ─ ─ ─ ─ ─ ─ ─ ─ ─ ─ 取り外しタイプ
メタルアーマー └
使用環境条件
周囲温度の上限は40 ℃ であり、24時間以内の平均測定値は35 ℃ を超えない。
下限-15 °C:
高度: 海抜1000メートル以下。
相対湿度: 毎日の平均95% 以下、毎月の平均90% 以下;
地震の強さ: 8度以下;
水蒸気圧: 1日の平均は2.2kPaを超えず、月平均は90% を超えません。
技術的パラメータ
真空スイッチギアの主な技術パラメータ
シリアル番号 | 企画 | サイズ | パラメーター |
1 | 定格電圧 | KV | 40.5 |
2 | リアンチャン | A | 12501600 2000 |
3 | 定格周波数 | Hz | 50 |
4 | 短期耐電流の定格 | KA | 20 25 31.5 |
5 | 定格ピークに耐える電流 | KA | 50 63 80 |
6 | 定格パワー周波数に耐える電圧 | KV | 95/1分 |
7 | 定格雷衝撃抵抗電圧 | KV | 185 |
8 | 定格短絡持続時間 | S | 4 |
9 | 保護レベル | IP3X |
真空回路ブレーカーの主な技術パラメータ
シリアル番号 | 企画 | ウィービング位置 | パラメーター |
1 | 定格電圧 | KV | 40.5 |
2 | 定格周波数 | Hz | 50 |
3 | 定格パワー周波数に耐える電圧 | KV | 95/lmin |
4 | 定格雷衝撃抵抗電圧 | KV | 185 |
5 | 定格電流 | A | 12501600 2000 |
6 | 短期耐電流の定格 | KA | 20 25 31.5 |
7 | 定格短絡破壊電流 | KA | 20 25 31.5 |
8 | 定格ピークに耐える電流 | KA | 50 63 80 |
9 | 定格短絡持続時間 | Ms | 4 |
10 | 開始時間 | Ms | 30 S 1 W 60 |
11 | Hehe時間 | Ms | 50 & t W】00 |
12 | 88固定ショート回路で電流が中断される回数 | タイム | 20 |
13 | 機械的寿命 | タイム | 10000 |
スプリング操作機械の主な技術的パラメータ
名前 | ユニット | 数値 | |
定格動作電圧 | 分割コイル | V | DC220/110 AC220/110 |
閉じるコイル | |||
定格オペレーティング现在 | 分割コイル | A | O.96(22OV)1.O5I11OV) |
閉じるコイル | |||
エネルギーストレージモーター力 | W | 230 | |
エネルギーストレージモーター定格電圧 | V | DC220/110 AC220/110 | |
エネルギー贮蔵时间 | S | W 12 |
スイッチギアの構造特性
スイッチギアは、装甲金属封入スイッチギアの GB 390 6 — 1991 および IEC 298 規格に従って設計されています。全体は、キャビネットと取り出し可能な部分 ( ハンドカート ) の 2 つの部分で構成されています。キャビネット構造はプレハブされ、ボルトで固定されます。スイッチギアの内部は、回路遮断器室、メインバスバー室、ケーブル室、金属仕切りのリレー計器室に分かれています。エンクロージャの保護レベルは IP 3 X に達し、各コンパートメント間の保護レベルは IP 2 X であり、すべての金属構造部品は確実に接地され、メイン回路システムの各コンパートメントには独立した排気圧力解放チャネルがあります。
1.エンクロージャとパーティション
スイッチギアのシェルとパーティションは、 CNC 工作機械によって加工され、曲げられた後、冷間圧延鋼板とボルトで一緒にボルト付けられます。したがって、組み立てられたスイッチギアは構造寸法の均一性を確保できます。スイッチング機器は、遮断器室、メインバスバー室、ケーブル室、リレー計器室に分かれており、各部分は接地された金属仕切りによって分離されています。
2.手押し車
ハンドカートは、目的に応じて遮断器ハンドカート、電圧変圧器ハンドカート、計量ハンドカート、絶縁ハンドカートなどに分けることができます
ハンドカートには、キャビネット内のテスト / 絶縁位置と作業位置があり、各位置には、上記の 2 つの位置にあるときにハンドカートが随意に移動することができないように、ジョイントシルバーデバイスが装備されています。
3.回路ブレーカーコンパートメント
サーキットブレーカコンパートメント内に特定のトラックが取り付けられ、ハンドカートが移動します。サーキットブレーカが試験位置の作業位置の間を移動すると、分離フラップが自動的に開閉され、スタッフが
充電された体に触れる。ハンドカートはキャビネットのドアを閉じて操作することができ、表示ウィンドウを通じてキャビネット内のハンドカートを見ることができ、ハンドカートの機能標識を見ることができます。
4. Busbar部屋
主バスは、隣接するキャビネットのサイドパネルを横切るときにバスバースリーブで固定される分岐バスバーと静的コンタクトボックスによって、 1 つのスイッチギアから別のスイッチギアへと導きます。すべてのバスバーは複合絶縁材で絶縁されています。
5.ケーブルコンパートメント
PT、地上スイッチ、サージアレスター、複数のケーブルをケーブルルームに設置できます。
6.リレールーム
リレーチャンバープレートとパネルは、制御、保護要素、計量、ディスプレイ計装、ライブモニタリングインジケータなどの二次コンポーネントとインストールすることができます。
7. Interlock装置
スイッチギアには、オペレーターと機器の安全を確保するための信頼性の高いインターロック装置があります:
![]() | ![]() | ![]() |
| 連動インストールを促進する | KYN61-40.5(Z) 装甲ハンドカートキャビネット | 接地スイッチ |
接地スイッチが開放位置にある場合、ハンドカートを試験 / 絶縁位置から作業位置に移動することができ、リアドアを開けることができず、誤ってライブ間隔に入ることを防止します。
ハンドカートがキャビネットから完全に引き出される場合、またはハンドカートがキャビネット内のテスト / 絶縁位置で接地されロックとアンロッカーを開く場合、接地スイッチを閉じることができます。ハンドカートが作業位置にある場合、接地スイッチを閉じることはできません。接地スイッチのライブ誤接続を防止し、接地スイッチが閉じた位置にあるときに多重ハンドカートが作業位置に移動することを防止します。
回路ブレーカハンドカートは、試験 / 絶縁位置または作業位置にあるときにのみ回路ブレーカを操作できます。回路ブレーカが命名された後、ハンドカートは移動できず、ライブ負荷が誤って回路ブレーカを押したり引いたりすることを防止します。各キャビネットの間に電気インターロックを設置できます。
接地装置
ケーブルルームには、隣接するキャビネットを通り抜けてキャビネットと良好に接触できる独立した6x50mm2接地バスバーがあります。
主な配線スキーム
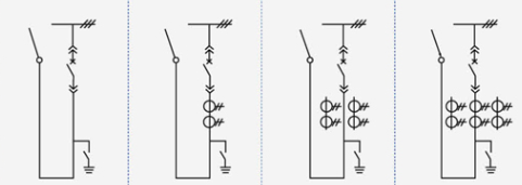
スイッチギアの一次配線方式には 27 の一般的に使用されている典型的な方式があり、ケーブル入出口ライン、オーバーヘッド入出口ライン、接触と測定、保護などのユーザーのニーズを満たすことができます。
スキーム番号 | 01 | 02 | 03 | 04 | |
メイン配線図 | ![]() | ||||
主な電気機器 | 定格電流 | 125,016,002,000 | |||
新しい回路ドライバーZN85-40.5 | 1 | 1 | 1 | 1 | |
現在の変圧器LDBJ8(9)-35 | 2 | ||||
接地スイッチIN22-40.5/31.5 | 1 | 1 | 1 | 1 | |
使用 | オーバーヘッドアウト | オーバーヘッドアウト | オーバーヘッドアウト | オーバーヘッドアウト | |
スキーム番号 | 05 | 06 | 07 | 08 | |
メイン配線図 | ![]() | ||||
主な電気機器 | 定格電流 | 125,016,002,000 | |||
新しい回路ドライバーZN85-40.5 | 1 | 1 | 1 | 1 | |
現在の変圧器LDBJ8(9)-35 | 2 | 3 | |||
接地スイッチIN22-40.5/31.5 | 1 | 1 | 1 | 1 | |
使用 | ケーブルの出口 | ケーブルの出口 | ケーブルの出口 | ケーブルの出口 | |
スキーム番号 | 09 | 10 | 11 | 12 | |
メイン配線図 | ![]() | ||||
主な電気機器 | 定格電流 | 125,016,002,000 | |||
新しい回路ドライバーZN85-40.5 | 1 | 1 | 1 | 1 | |
現在の変圧器LDBJ8(9)-35 | 1 | 2 | 3 | ||
使用 | 左 (右) コンタクト | 左 (右) コンタクト | 左 (右) コンタクト | 左 (右) コンタクト | |
スキーム番号 | 13 | 14 | 15 | 16 | |
メイン配線図 | ![]() | ||||
主な電気機器 | 定格電流 | 125,016,002,000 | |||
新しい回路ドライバーZN85-40.5 | |||||
現在の変圧器LDBJ8(9)-35 | 1 | 2 | 3 | ||
使用 | コンタクト | コンタクト | コンタクト | コンタクト | |
スキーム番号 | 17 | 18 | 19 | 20 | |
メイン配線図 | ![]() | ||||
主な電気機器 | 定格電流 | 125,016,002,000 | |||
新しい回路ドライバーZN85-40.5 | 1 | 1 | 1 | 1 | |
現在の変圧器LDBJ8(9)-35 | 1 | 2 | 3 | ||
使用 | ケーブルで | ケーブルで | ケーブルで | ケーブルで | |
スキーム番号 | 21 | 22 | 23 | 24 | |
メイン配線図 | ![]() | ||||
主な電気機器 | 定格電流 | 125,016,002,000 | |||
新しい回路ドライバーZN85-40.5 | 1 | 1 | 1 | 1 | |
現在の変圧器LDBJ8(9)-35 | 1 | 2 | 3 | ||
使用 | のオーバーヘッド | のオーバーヘッド | のオーバーヘッド | のオーバーヘッド | |
スキーム番号 | 25 | 26 | 27 | 28 | |
メイン配線図 | ![]() | ||||
主な電気機器 | 定格電流 | 125,016,002,000 | |||
電圧変圧器LDX9-35 | |||||
ヒューズXPNP-35 | 2 | 3 | 2 | ||
サージアレスターYH5WS-51/134Q | 3 | ||||
| 変圧器SCB9-50-35/0.4 | 1 | ||||
使用 | 電圧変圧器 | 電圧変圧器 | 駅の使用状況が変更されました | ||
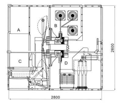
スイッチギア構造の寸法と概略図
![]() | ![]() |
| 寸法 (WxDxH): 1400x2800x2600 | スイッチギアAリレー計器室BバスルームCサーキットブレーカールームDケーブルの構造の概略図 |
スイッチキャビネットの取付け
1.電気部屋の高さ: ≥ 4500mm:
2.キャビネットの背面から壁までの距离: ≥ 1500mm;
3.基礎フレームの平坦度: ≤ 1 mm/m?;
4.地上の基礎埋め込みチャネル鋼の部分は3mmを超えてはならない。
5.それはボルトまたは溶接によって基礎に固定することができます:
6.スイッチギアの重量は约1800Kgです:
7.スイッチギア操作コリドーの幅 (単列): ≥ 3000mm、二列 (対面) ≥ 4000mm。
製品の一貫性
二次ラインの主なスキーム番号、単一のバスシステム図、配置図およびレイアウト図。
二次回路電気回路図と端子配置図:
スイッチギアの電気部品のモデル、仕様および数量。
メインバスバーとブランチバスバーの仕様と材料:
スペアパーツとスペアパーツの名前と数量:
特別な要件はメーカーと合意されています。
製品技術の継続的な改善により、すべてのデータは工場の最新の技術部門によって確認されるべきであり、予告なく変更されます。
注文指示
ユーザーは命令するとき次の技術情報を提供するべきです:
主な配線方式図、目的および単線システム図 : 定格電圧 : 定格電流 : 定格短絡遮断電流 : 配電室のレイアウト図とスイッチギアの配置と構成図など。
インレットケーブルとアウトレットケーブルの仕様を示します。
スイッチギアの制御、測定、保護機能の要件、およびラッチおよび自動デバイスのその他の要件。
スイッチギアの主要な電気部品のモデル、仕様、数量。スイッチギアのように!または着信するキャビネットはバスバーブリッジで接続する必要があり、バスバーブリッジの定格空隙率や地上高さからのバスバーブリッジのスパンなどの特定の要件を提供する必要があります。
スイッチギアが特別な環境で使用されるときは、注文時に詳しく説明する必要があります。
その他の特別な要件。
スイッチギアのインストールの概略図
