XGN2-12中電圧開閉装置の性能、安全な操作方法、および技術的パラメータを提示します
アプリケーションのスコープ
XGN ポート —12 ボックス型固定金属封入式スイッチギア ( リングネットワークキャビネットと呼ばれる ) は、ブレイク負荷と短絡および閉じる短絡電流として AC 50Hz 、 10KV ネットワークに適しており、このリングネットワークキャビネットは負荷スイッチを操作するための手動および電動バネ機構を装備し、接地スイッチと絶縁スイッチは手動操作機構を装備しています。このリングネットワークキャビネットは、強力な完全な性能、小型、火災および爆発の危険性なし、信頼性の高い「 5 つの防止」機能を持っています。
使用環境条件
周囲温度の上限は40 °C、下限は-25 °Cです。
高度は1000mを超えません。
空気の相対湿度の 1 日平均は 95% を超えず、月平均は 90% を超えず、水蒸気の 1 日平均は 2.2 x 10 — 3 Mpa を超えず、月平均は 1.8 x 10 — 3 Mpa を超えず。
周囲の空気は可燃性ガスや水蒸気によって腐食または明らかに汚染されていません。
定期的な激しい振動はありません。
モデルと意味
XGN□-□-□-□/□-□
└ ─ ─ 定格熱安定電流 (KA)
└ ─ ─ 定格電流 (A)
└ ─ ─ 操作方法 (Jスプリング操作D電磁気操作。)
└ ─ ─ ワンプラン番号
└ ─ ─ 定格電圧
└ ─ ─ デザインシリアル番号
└ ─ ─ インドア
└ ─ ─ 修正済み
└ ─ ─ ボックスタイプ
使用環境条件
◆ 周囲温度の上限40 °C下限-25 °C (屋内):
◆ 割り当て1000m;
(When水面高度が 1000 m を超えると、 DUT 593 — 1996 “高圧スイッチギアの共有注文のための技術ガイドライン ” の関連規定に従って実施されなければならない ) 。
◆ 相対湿度の1日平均は95% を超えず、月平均は90% を超えない:
地面の揺れの強さは8度を超えません。
◆ 火災、爆発の危険、深刻な汚染、化学腐食、激しい摂動の場所はありません。
スイッチギアの主な技術的パラメータ
シリアル番号 | 企画 | ユニット | データ |
1 | 定格電圧 | KV | 3、6、10 |
2 | 最大動作電圧 | KV | 3.5、8.9、11.5 |
3 | 定格電流 | A | 5月-00 |
4 | 定格ブレイク電流 | KA | 16.20、31.5、40 |
5 | 定格ショートサーキットエンゲージメント (定格ショートサーキットオフカレント) | KA | 40、50、80.100 |
6 | 定格短絡熱安定化電流 | KA | 16.20、31.5、40 |
7 | 熱的に安定した流れのために評価される | KA | 40、50、80、100 |
8 | 評価される熱沈降時間 | s | 4 |
9 | 保護レベル | IP | IP2X |
10 | Busbarシステム | - | 単一のバスバーの隣にある単一のバスバー |
11 | 仕組み | - | 電磁タイプ、スプリングエネルギーストレージタイプ |
12 | 寸法 (幅, × 深さ, × 高さ)。 | Mm | 1100 × 1200 × 2650 (1000Aの下). |
13 | 重量 | Kg | 1000 |
構造とエラー対策デバイス
構造
キャビネットは金属製の囲まれた装甲構造であり、キャビネットの骨格は角鋼で溶接され、キャビネットは遮断器室、バスバー室、ケーブル室、リレー室に分かれており、キャビネット内の主要部品の動作は、観察窓とファサードの照明を通じて観察することができます。スイッチギアの技術的性能を向上させるために、主要コンポーネント ( 回路ブレーカ、回転式切断スイッチなど )再設計されています
キャビネットのレイアウトによると、リレールームはリレーが設置され、ドアには信号リレー、インジケータ機器、信号ライト、転送スイッチの設置と操作室が装備され、後部はバスバールーム、下部はケーブルルームで、ユーザーは簡単にワイヤーを配線することができます。前面は遮断器室で、開閉器のメンテナンスが容易です。キャビネットの内部機構は、図 1 、図 2 、製品マニュアルに示されています。
エラー防止装置
「 5 つの防止」機能は、回路遮断器の誤接続と誤接続を防止します。負荷による切断スイッチの誤識別と誤接続を防止します。ライブシャットダウンとグランドスイッチを防止します。グランドが開閉されたときに電源がオンになるのを防止します。ライブ間隔への誤入りを防止します。
このスイッチギアは、強制的な機械的ロック方法を採用し、エラー防止装置は、サポート、ディスク、パネル、ロックプレート、ハンドル、接続ロッドなどの主要コンポーネントで構成されており、信頼性の高い性能、完全な機能、シンプルな構造、操作が容易な特性を持ち、「五つの予防」を簡単かつ効果的に達成します。:
(1) 赤と緑のプレートを備えた制御スイッチ (KWスイッチ) は、サーキットブレーカースキームで使用され、サーキットブレーカの誤った切断と誤った閉鎖を防ぎます。
(2)回路ブレーカが実際に切断された後にのみ、小さなハンドルを「動作」位置から引き出し、「切断ロック」位置に右にダイヤルすることができます。分離および閉じる絶縁スイッチ。負荷分割と閉じる絶縁スイッチを防止します。ラッチとアンチロックの信頼性は、二重のエラー防止機能を有しています。すなわち、小さなハンドルが「切断とロック」位置にある場合、上部と下部の絶縁スイッチを閉じて分割することしかできず、回路ブレーカを閉じることができず、回路ブレーカの誤閉を回避します。
(3)回路遮断器と上下絶縁スイッチが閉じた状態で、小さなハンドルが「作業」位置にある場合、誤ってライブインターバルに入るのを防ぐために前部と後部キャビネットのドアを開けることはできません。
(4)上下絶縁スイッチが開くと、接地スイッチを閉めることができず、小さなハンドルを「ブレイクロック」位置から「メンテナンス」位置にダイヤルすることはできません。
(5)接地スイッチが開かないと、上下絶縁スイッチを閉じることができず、接地線付きの切断スイッチが閉じることを防ぐことができます。
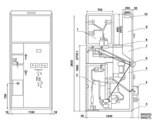
X段階-12/07Dアウトライン (図1)

1.バスバールーム2.ケーブルルーム3.接地バス4.電磁 (スプリング) メカニズム5.新しい回路デバイスルーム
6.手動操作および共同販売メカニズム7.操作室8.圧力解放チャネル9.計器室10.小型バスターミナル
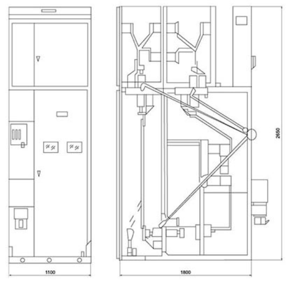
XGN-12 (バイパスケーブルコンセント) 概要 (図2)

寸法インストール図面

