HXGN—12 中電圧開閉装置の性能、安全な動作方法、技術パラメータを紹介します。
1.使用範囲

HXGN□-12 (F.R) ボックスタイプの固定AC金属密閉型開閉装置 (「リングネットワークキャビネット」と呼ばれる) は、都市電力網の改修と建設用に設計された新しいタイプの開閉装置です。また、電源システムの破壊負荷電流、短絡電流、クロージングディッシュ電流としても使用され、AC 3-10KV、50Hzの配電システムに適しています。都市の電力網の建設および改修プロジェクト、産業および鉱業企業、高層ビルおよび公共施設などで、リングネットワークの電力供給ユニットおよび端末機器として広く使用されており、配電、制御および保護の役割を果たしています。電気機器の、また、プレインストールされた変電所に設置することもできます。このリングネットワークキャビネットには、手動または電気的に操作できる真空負荷スイッチとバネ操作機構が装備されています。接地スイッチと隔離スイッチには手動操作メカニズムが装備されており、このリングネットワークキャビネットの完全なセットは強くて小さいです。燃焼や爆発の危険性はなく、信頼性の高い「5つの防止」機能を備えています。このリングネットワークキャビネットは、GB3960「3〜35KV ACメタルスイッチギア」およびIEC60420「高電圧AC負荷スイッチ-ヒューズコンビネーション電化製品」規格の関連規定に準拠しています。
2.モデルとその意味
HXGN□—12 ( F. R )
H : リングネットワーク
X: 箱のタイプ
G : ステーション
N: 屋内
□: 設計シリアル番号
12: 定格電圧
(F.R)負荷スイッチ · ヒューズ組み合わせ
3.通常の使用条件
1.周囲の気温 : —15 。0 40 °C;
2.標高: 1000m および以下;
3.湿度条件: 1日の平均は95% 以下、1日の平均水蒸気圧は2.2kPa以下、月平均は90% 以下、毎月の平均水蒸気圧はL 8kPa以下です。
4.地震の強度 : 8 度以下;
5.腐食性ガスや可燃性ガスなどの明らかな汚染物質はありません。
注 : 上記の通常利用条件を超えた場合は、利用者は当社と交渉することができます。
4.主な技術パラメータ
シリアル番号 | 名前 | ユニット | データ | |
1 | 定格電圧 | KV | 12 | |
2 | 定格電流 | 負荷スイッチギア | A | 630 |
複合スイッチギア | 125 | |||
3 | 定格短絡破壊電流 | KA | 31.5 | |
4 | 定格アクティブ負荷破壊電流 | A | 630 | |
5 | 短期耐電流の定格 | KA | 20 | |
6 | 定格ピークに耐える電流 | KA | 50 | |
7 | 定格電力周波数は、電圧インターフェーズ、グランドに耐えられるように定格されます/ブレイク | KV | 42/48 | |
8 | 雷の衝撃は、電圧位相、地面に抵抗的です/ブレイク | KV | 75/85 | |
9 | 機械的寿命 | タイム | 10000 | |
10 | 定格ハンドオーバー電流 ( 組合せ機器 ) | A | 3150 | |
11 | 仕組み | 手動または電気 | ||
12 | 保護レベル | IP3X | ||
5.構造特性 (as図 2 、図 3 ) に示す。
1.構造性能特性
1.1.1リングネットワークキャビネットは8MFプロファイルを採用しており、フレーム全体にモジュラスホールB = 2 (タン) が取り付けられています。
L1.2リングネットワークキャビネットには、隔離スイッチ、真空負荷スイッチ、接地スイッチを備えたFZN21 — 12D.負荷スイッチまたはFZRN21 — 12D.ヒューズ組み合わせ電化製品が装備されており、切断スイッチと接地スイッチには明らかな破損があります。
1,3アイソレーションスイッチ、真空負荷スイッチ、接地スイッチ、キャビネットドアには、完全で信頼性の高い掘削および連動装置があり、誤操作を効果的に防ぎ、安全なメンテナンスを確保できます。
1.1.4 手動と電気で操作できます。
1. L 5 計測キャビネットのキャビネットドアと計器ドアにはシールピンが装備されています。
1.1.6電気キャビネットと溶融チューブの組み合わせを撃針で融合させます。短絡の場合、撃針がトリッピングメカニズムに当たって急速な開閉と破損を実現し、電気機器を効果的に保護することができます。
1.L 7 リングメッシュキャビネットはフロント操作、信頼性の高い壁の取付けを採用します。
2.「 5 つの予防」ロック機能
2. 2.1送電操作: キャビネットのドアが閉じられてロックされ、地上スイッチが「開いた」位置まで操作されている場合にのみ、ロードスイッチを操作して位置を閉じることができます。
2.2.2停電操作: ロードスイッチが分離位置にあるとき、接地スイッチを閉じることができ、接地スイッチが閉じた位置にあるとき、絶縁パーティションを所定の位置に挿入してキャビネットのドアを開きます。
2.1。3真空遮断器は隔離ナイフと確実に連動し、隔離ナイフと接地ナイフは互いにリンクされ、キャビネットドアと連動し、絶縁パーティションもキャビネットドアと連動します。
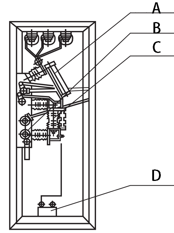
![]() | 図 2 A: 絶縁体 B : 壁のケーシングを通して C : 動作メカニズム D.: 接地スイッチ |
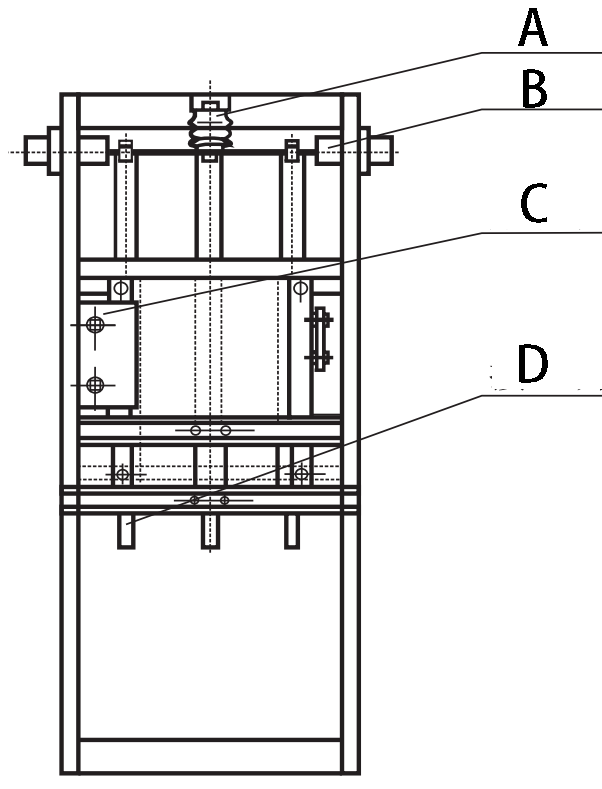
![]() | 図3 A: ヒューズ ( 絶縁ナイフゲート ) B : 弾丸制御機構 C: 負荷スイッチ D.: 電流変圧器 |
6.リングネットワーク電源の原理
リングネットワーク電源は <3つの基本ユニットで構成されています (図を参照) 入口と出口のラインキャビネットはリングネットワークユニットとして使用され、障害が発生したときに時間内に分離でき、別のユニットがユーザーの継続的な電源を確保します。トランスブランチ。ユーザーループネットワークキャビネットは、変圧器を保護し、隔離する役割を果たします。これは、メンテナンスやオーバーホールに便利です。リングネットワークキャビネットは任意に拡张することができ、ユーザーの要件に応じて基本的なユニットからのさまざまな组み合わせスキームで构成することができます。
![]() | ||
| ケーブル入口および出口ラインキャビネットユーザー変圧器分岐キャビネットケーブル入口および出口ラインキャビネット |
7.主回路回路図
スキーム番号 | 01 | 02 | 03 | 04 | 05 | 06 |
主回路回路図 | ![]() | |||||
使用 | ライン内外のケーブル | ライン内外のケーブル | ライン内外のケーブル | ライン内外のケーブル | ライン内外のケーブル | ライン内外のケーブル |
隔離/負荷 / 組み合わせ機器 | GN□—12D. | GN□—12D. | GN□—12D. | FZN21 — 12D. | FZN21 — 12D. | FZN21 — 12D. |
ヒューズ | RN 3 | RN 3 | ||||
電流変圧器 | LZZBJ9 | LZZBJ9 | ||||
アレッサー | HY5W | |||||
スキーム番号 | 07 | 08 | 09 | 10 | 11 | 12 |
主回路回路図 | ![]() | |||||
使用 | ライン内外のケーブル | ライン内外のケーブル | ライン内外のケーブル | ライン内外のケーブル | ライン内外のケーブル | ライン内外のケーブル |
隔離/負荷 / 組み合わせ機器 | FZN21 — 12D. | FZN21 — 12D. | FZN21 — 12D. | FZN21 — 12D. | FZN21 — 12D. | GN□—12D. |
ヒューズ | RN2 | RN2 | RN2 | |||
電流変圧器 | LZZBJ9 | LZZBJ9 | LZZBJ9 | LZZBJ9 | ||
電圧変圧器 | JD.Z | JD.Z | JD.Z | |||
アレッサー | HY5W | HY5W | HY5W | |||
スキーム番号 | 13 | 14 | 15 | 16 | 17 | 18 |
主回路回路図 | ![]() | |||||
使用 | 計量ケーブルインバウンドおよびアウトバウンドライン | ライン内外のケーブル | ライン内外のケーブル | ライン内外のケーブル | 計量ケーブルインバウンドおよびアウトバウンドライン | オーバーヘッド入線ケーブル出口 |
隔離/負荷 / 組み合わせ機器 | FZRN21 — 12 | FZRN21 — 12D. | FZRN21 — 12D. | FZRN21 — 12D. | GN□—12D. | |
ヒューズ | RN2 | S□LAJ | S□LAJ | S□LAJ | RN2 | RN 3 |
電流変圧器 | LZZBJ9 | LZZBJ9 | LZZBJ9 | LZZBJ9 | ||
電圧変圧器 | JD.Z | JD.Z | ||||
スキーム番号 | 19 | 20 | 21 | 22 | 23 | 24 |
主回路回路図 | ![]() | |||||
使用 | オーバーヘッド入線ケーブル出口 | オーバーヘッド入線ケーブル出口 | オーバーヘッド入線ケーブル出口 | オーバーヘッド入線ケーブル出口 | オーバーヘッド入線ケーブル出口 | オーバーヘッド入線ケーブル出口 |
隔離/負荷 / 組み合わせ機器 | FZRN21 — 12D. | FZRN21 — 12D. | FZRN21 — 12D. | FZRN21 — 12D. | FZRN21 — 12D. | FZRN21 — 12D. |
ヒューズ | S□LAJ | S□LAJ | S□LAJ | S□LAJ | ||
電流変圧器 | LZZBJ9 | LZZBJ9 | LZZBJ9 | LZZBJ9 | ||
電圧変圧器 | ||||||
スキーム番号 | 25 | 26 | 27 | 28 | 29 | 30 |
主回路回路図 | ![]() | |||||
使用 | コンタクト | コンタクト | 測定 · 連絡 | 測定 · 連絡 | 架空ライン接触 | 架空ライン接触 |
隔離/負荷 / 組み合わせ機器 | FZRN21 — 12 | FZRN21 — 12D. | FZRN21 — 12D. | FZRN21 — 12 | ||
ヒューズ | S□LAJ | RN2 | RN2 | S□LAJ | ||
電流変圧器 | LZZBJ9 | LZZBJ9 | ||||
電圧変圧器 | JD.Z | JD.Z | ||||
8.形状および取付けサイズ
1.リングネットワークキャビネットの全体的なサイズ
![]() | ![]() | キャビネット幅方向 |
| 説明: 高さは選択できます | キャビネットの深さ方向 |
2.リングネットワークキャビネットの取付けサイズ
![]() |
| 注 : チャネル鋼は確実に接地する必要があります |